Troy Hills Neighbors
Next Parsippany Zoning Board Meeting:
Wednesday June 10, 2026 at 7pm
Parsippany High School, 309 Baldwin Rd.
Next Board Meeting In:
--
Days
--
Hours
--
Minutes
PHS aerial map PHS door map

Meeting Schedule

1. Wed April 2, 2025 at Parsippany High School, 309 Baldwin Rd.

2. Wed July 30, 2025 at Parsippany Hills High School, 20 Rita Dr.

-- Wed Sept 17, 2025 - CANCELLED

3. Wed Oct 22, 2025 at Parsippany High School, 309 Baldwin Rd.

4. Wed Jan 28, 2026 at 5:30 PM at Parsippany High School, 309 Baldwin Rd.

5. Wed April 15, 2026 at Parsippany High School, 309 Baldwin Rd.

6. June 10, 2026 at Parsippany High School, 309 Baldwin Rd.

IMPORTANT!

At the Zoning Board Meeting, the Experts (Engineer, Planner, Traffic Engineer, Environmentalist) hired by the Applicant (the Mosque / Developer) will give Testimony.

The Zoning Board members will ask the Applicant's Experts QUESTIONS. You will sit quietly and respectfully. You will form a line at the microphone, give your name to the Board, and then you may ask QUESTIONS.

Members of the public may ask QUESTIONS of the experts, ONLY based on the Experts' Testimony.

Do NOT ask them questions outside their area of expertise and testimony. They do not have to answer. Ask about their area of expertise only.

You may NOT make STATEMENTS. Do not say, "I oppose this because..." You must ask QUESTIONS. There will be a time for statements at a future meeting AFTER all the experts have spoken. But you cannot give statements/testimony at this time.

You must be quiet, polite, and respectful to the Board, the Applicant, and the Applicant's Experts at all times. No yelling or interrupting. It is disrespectful to the Board, who we want to hear and consider our objections, and then rule based on the facts. Act like adults, or the police can escort you out.

Rendering 5.13.2025
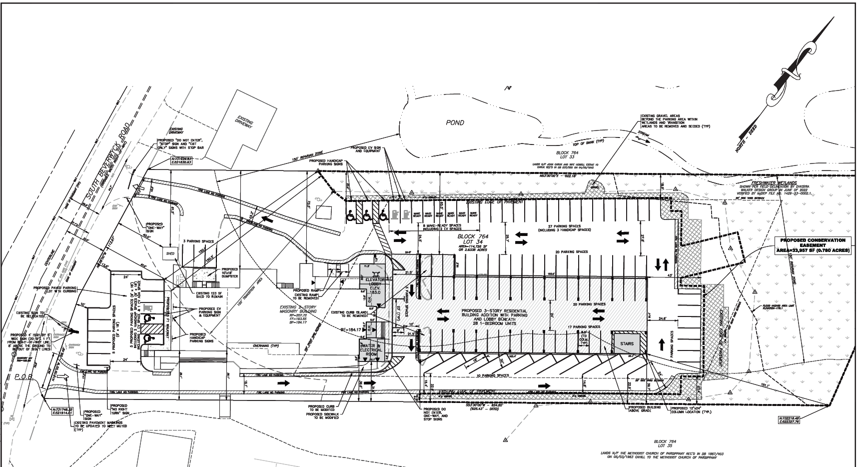
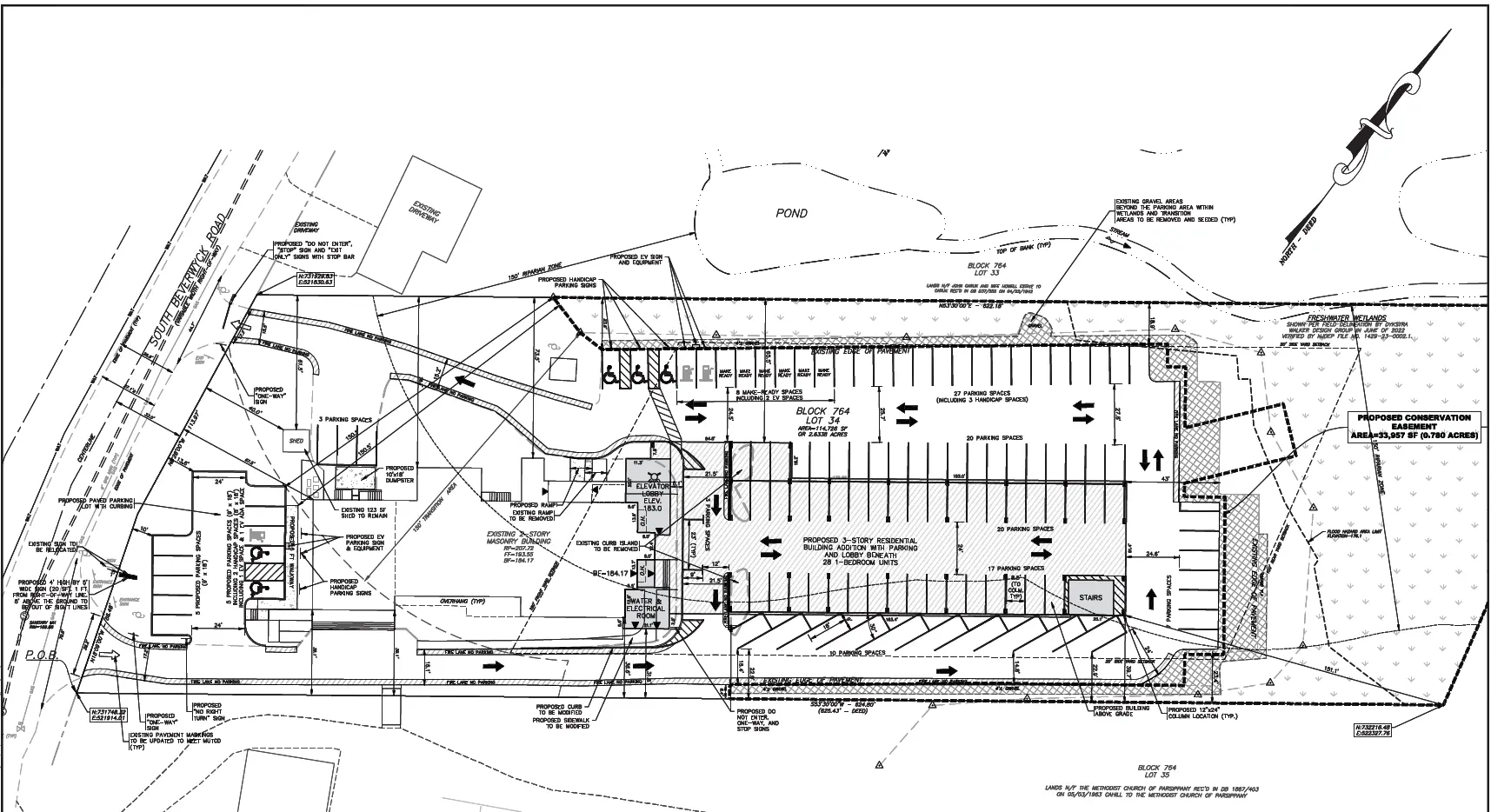
Constructing a multi-story, 28-unit apartment complex:
Possibly ~6 affordable units for low- and moderate-income occupants
~22 market-rent units
Reducing the number of parking spaces.
Site plan 6.24.2025

PARKING AREA FULL - PARK ON STREET

Parking Area Full

WHAT IF YOU NEED AN AMBULANCE?

Ambulance

WHAT IF THERE IS A FIRE?

Fire Hydrant

LIKE THE ONE ON PRESTON RD - 1/22/2026

1.22.2026 Preston Fire

Even without 28 additional residential units, events held at 879 S. Beverwyck Rd. have already resulted in parking and safety issues for residents of Quinby Ct., Lord Sterling Dr., and Preston Rd.

Firetrucks and ambulances may be delayed if needed when streets are effectively blocked. The dense crowding of these streets has already frustrated residents whose guests are unable to park at their homes for personal events, and at least once, a school bus has been unable to reach its destination.

Parsippany police have already been called multiple times for parking and safety issues at this location.

There are no sidewalks or crosswalks at this section of South Beverwyck Rd. Additional housing development in an already overcrowded location may increase the volume of pedestrian traffic and the risk to people and property.

The Developer Has Requested Many New Variances

*AND* For Existing Violations to Be Allowed to Remain:
Legal Notice July 2025 clearer

Dangerous Precedent

If the Town allows this major redevelopment, infringing on the wetlands and worsening existing safety, traffic, and quality-of-life issues expressed by local residents, it may set a dangerous precedent for other developers in town who will say, "If you let them do it, then you are discriminating against me if you don't allow my development." If this problem is not stopped here and now, it is very likely to spread. Please help us.

TROY MEADOWS WETLANDS

The Troy Meadows Wetlands are ~3,000 acres classified by the New Jersey Department of Environmental Protection (NJDEP) as "exceptional resource value wetlands". The wetlands are home to many species of animals and plants, some of which are endangered and would be at risk from further encroachment and habitat destruction.

Swans